“中法联合广西黄姚古镇明清古建筑保护国际工作营”第二周工作简介 - 新闻列表
“中法联合广西黄姚古镇明清古建筑保护国际工作营”第二周工作简介
2025-08-25 · 东南大学建筑学院 遗产与环境工作室

图片1:黄姚古镇现场拍摄
“中法联合广西黄姚古镇明清古建筑保护国际工作营”第二周现场实践由东南大学建筑学院副教授李永辉、博士后谢华荣带队进行,短短一周时间,课程与实践安排十分紧凑,学员们上午进行实地测绘与调研,下午学习来自国内外优秀老师带来的主题讲座,讲座内容包括《法国文化遗产保护制度历史与规范体系》,《法国最美村庄的保护协会和可持续性发展案例》,《气候变化与环境整治:故宫古建筑的预防性保护实践》,《古镇保护的空间与业态策略,以江苏高淳古镇的修缮及再生保护为例》,《文物预防性保护》和《历史文化遗产的价值:北非和葡萄牙建造文化的历史迁徙成为国际旅游财富的契机》专题。

图片2 :黄姚古镇现场调研合影

图片3 :主题讲座线下会场
实地测绘与调研方面,学员们开展了以莫氏司马第、郭家大院、郎官第(圣旨府)、欧阳予倩寓、永乐居五所重点民居为主的测绘工作。

图片4 :李老师带队调研现场

图片5 :测绘现场
其中,司马第和圣旨府为三开间三进深的官邸,为顺山势而建的阶梯式宅院,寓意步步高升。门厅两旁为耳室,正中为天井,两旁为厢房,一般作为客房和厨房。后座为正房、主房,正厅有案台和空间分隔之用的隔扇,古朴而典雅。郭家大院为二进式院落,每个房均有两层,房间沿轴线对称布置,两侧有太阳门、月亮门两个大型的圆拱门,拱门与厢房围合成两个天井,在古镇别具一格。欧阳予倩寓和永乐居为一开间三进深的民居,两进院落中间设置天井。每一进有一间屋子,每间屋子均为两层,第二进后墙设神龛,供奉祖宗牌位。

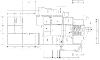
图片6 :司马第测绘平面图

图片7 :圣旨府测绘平面图
郭家大院为二进式院落,每个房间均有两层,房间沿轴线对称布置,两侧有太阳门、月亮门两个大型的圆拱门,拱门与厢房围合成两个天井,在古镇别具一格。

图片8 :郭家大院模型
欧阳予倩寓和永乐居为一开间三进深的民居,两进院落中间设置天井。每一进有一间屋子,每间屋子均为两层,第二进后墙设神龛,供奉祖宗牌位。

图片9:永乐居测绘剖面图
在测绘过程中,工作营学员们进行古镇传统民居在“门窗”、“墙体与彩绘”、“屋顶与结构”、“平面形式”、“功能改造与环境改善”五个类型学问题研究,对古镇上传统建筑构件的尺寸、形制有了深刻了解。

图片10:黄姚古镇传统民居各小组专题研究成果
8月29日下午,各小组将在工作营两周的成果进行汇总答辩,参加答辩的老师有法国气候建筑事务所刘宁建筑师,法国气候建筑事务所尼古拉·巴若尔建筑师,东南大学土木学院穆保岗副教授,东南大学建筑学院李永辉副教授,故宫博物院古建部张小古研究员和东南大学建筑学院博士后谢华荣。各位指导老师对学员们的工作成果给予充分的肯定,并给学员们未来的工作开展提出了宝贵的建议。
本次国际暑期学校邀请国际知名建筑师、学者综合授课,结合课程需求优化了课程设置,理论与实际相结合,围绕“黄姚建筑风貌特色”、“黄姚的地方微气候与民居舒适度”、“黄姚重点民居建筑研究”、“黄姚民居改造民意调查”、“黄姚环境整治调查”五个方面展开为期两周的研究工作,不仅提高了学员们对遗产保护的认知与现场实践合作能力,而且为后续黄姚古镇建筑遗产保护工作起到积极的推动作用。